contact me here
DF
contact me here
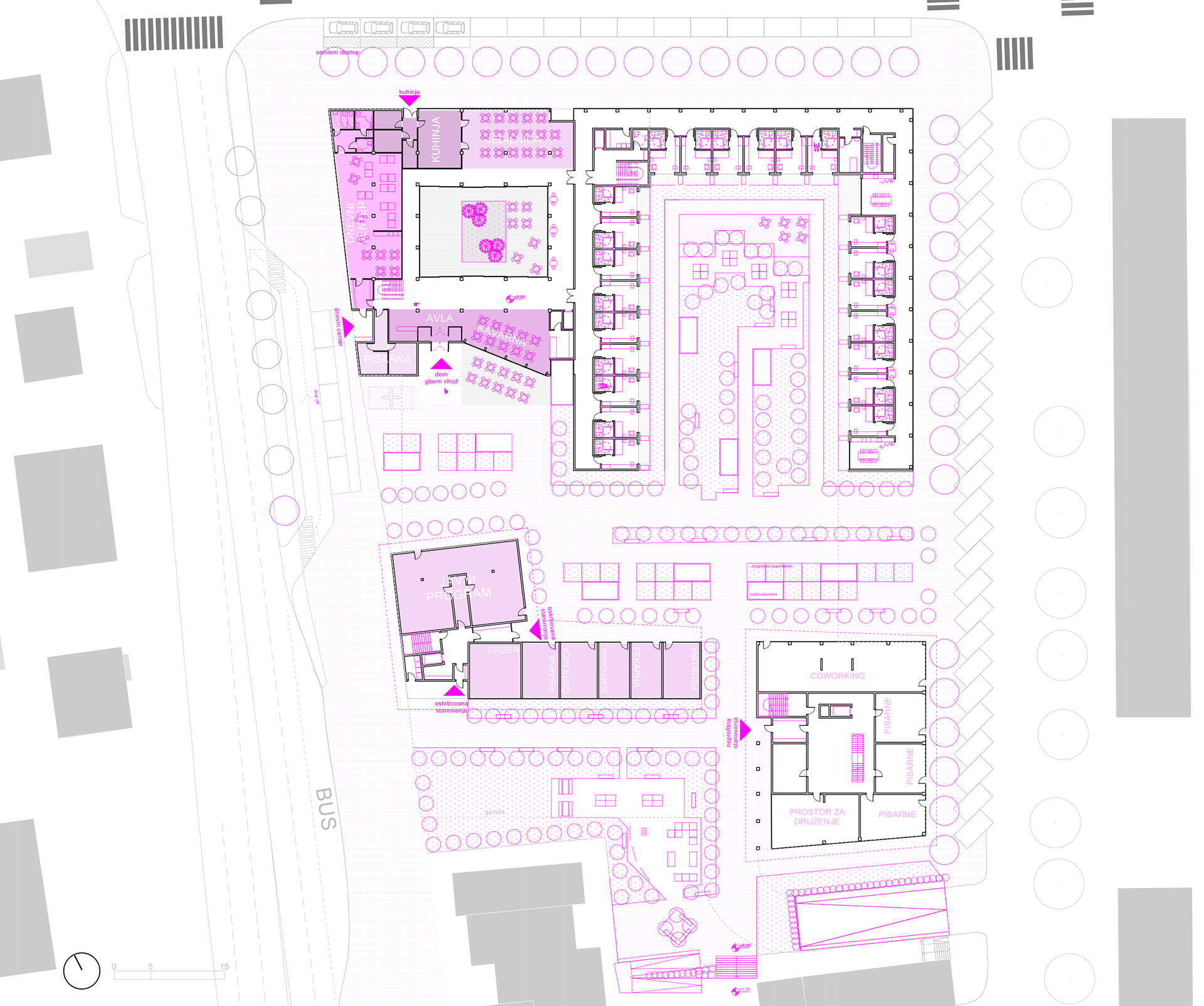
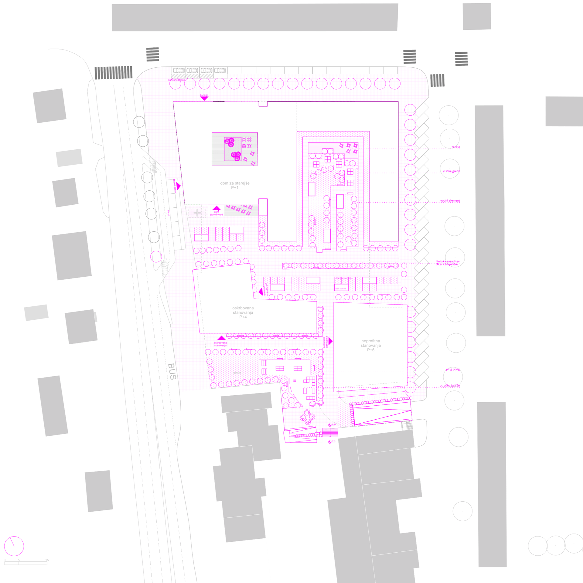
Medgeneracijski center
Center starejših + oskrbovana stanovanja + neprofitna stanovanja
↑
Back to Top