contact me here
DF
contact me here
PROstor^3
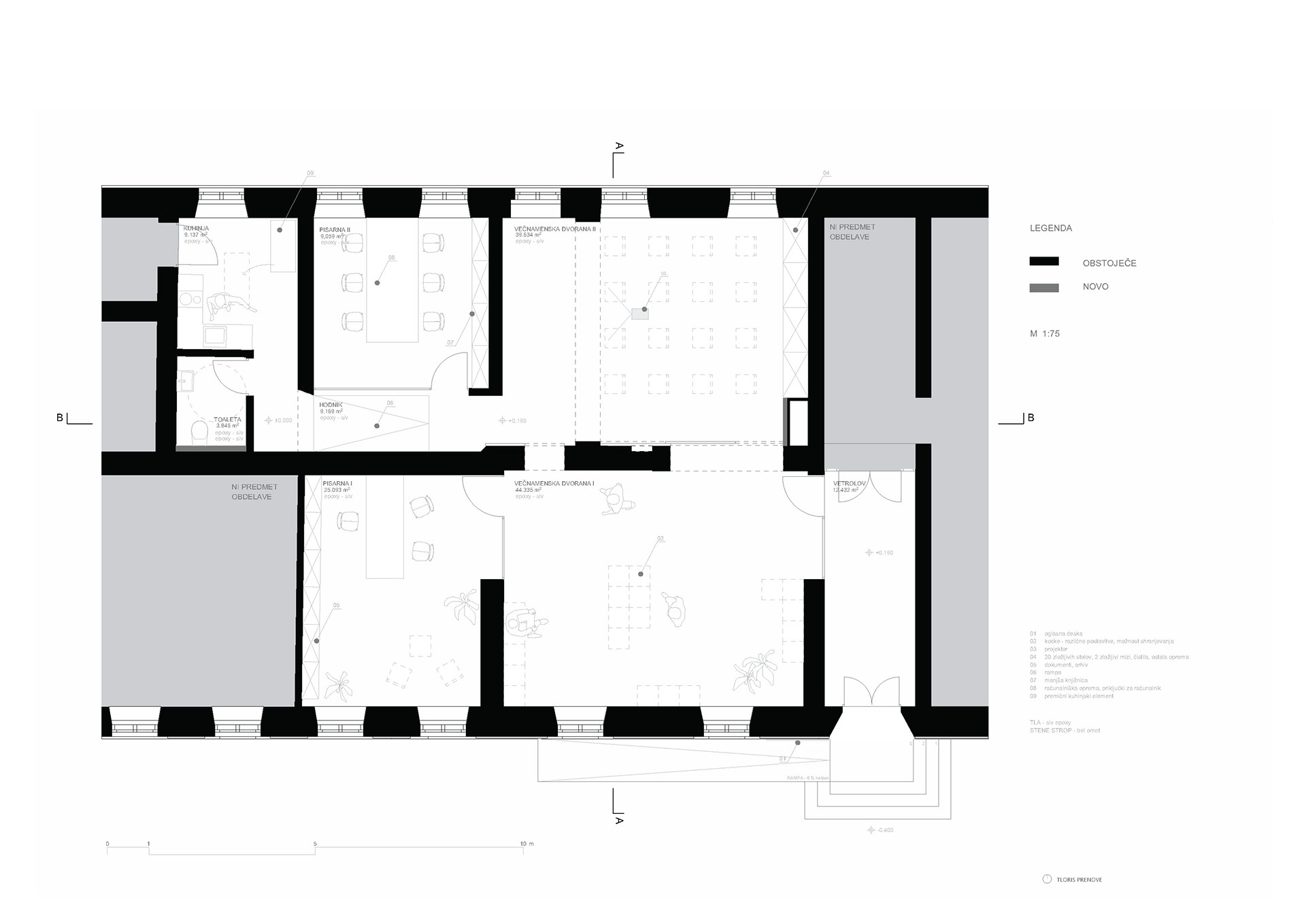
projekt prenove prostorov mestne četrti center, Mestne občine Maribor
javna dnevna soba za prebivalce mestne četrti center
Blaž Balažic/Nuša Pučko/David Ficko
↑
Back to Top