contact me here
DF
contact me here
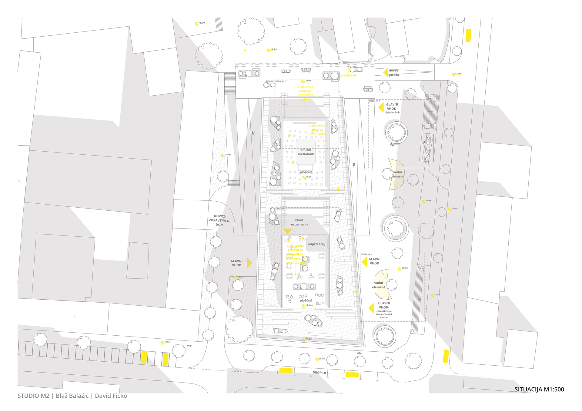
Research hub
Tech comunity center + health research center
authors: David Ficko, Blaž Balažic
↑
Back to Top